Portfolio
Academic Projects
Photography
Photo Services
Star Trek Podcast
About
Contact
Résumé
IMDb
Jordan Grant Pedersen
Set Designer | Photographer I.A.T.S.E. Local 891 & 212
Portfolio
Academic Projects
Photography
Photo Services
Star Trek Podcast
About
Contact
Résumé
IMDb

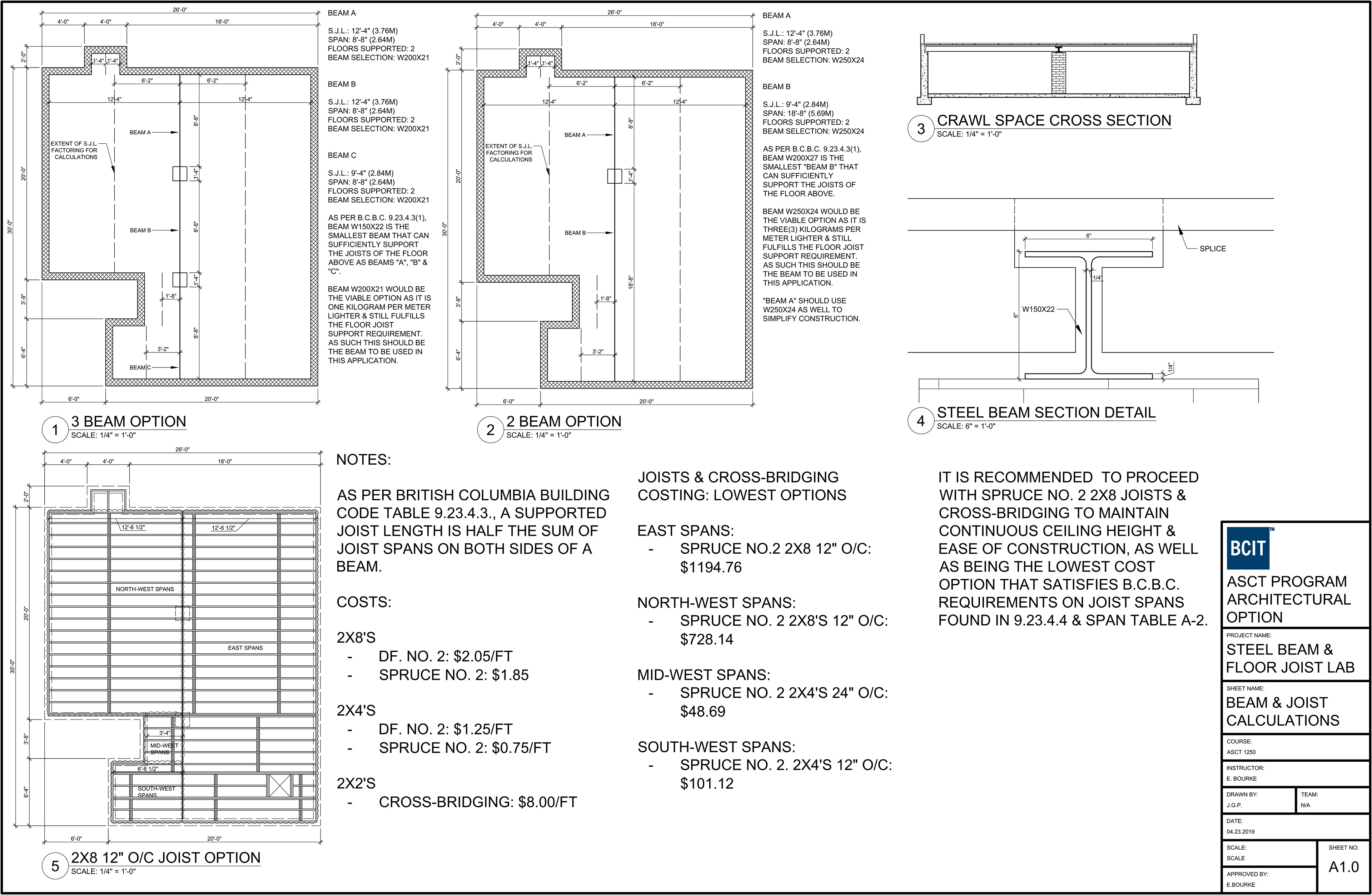
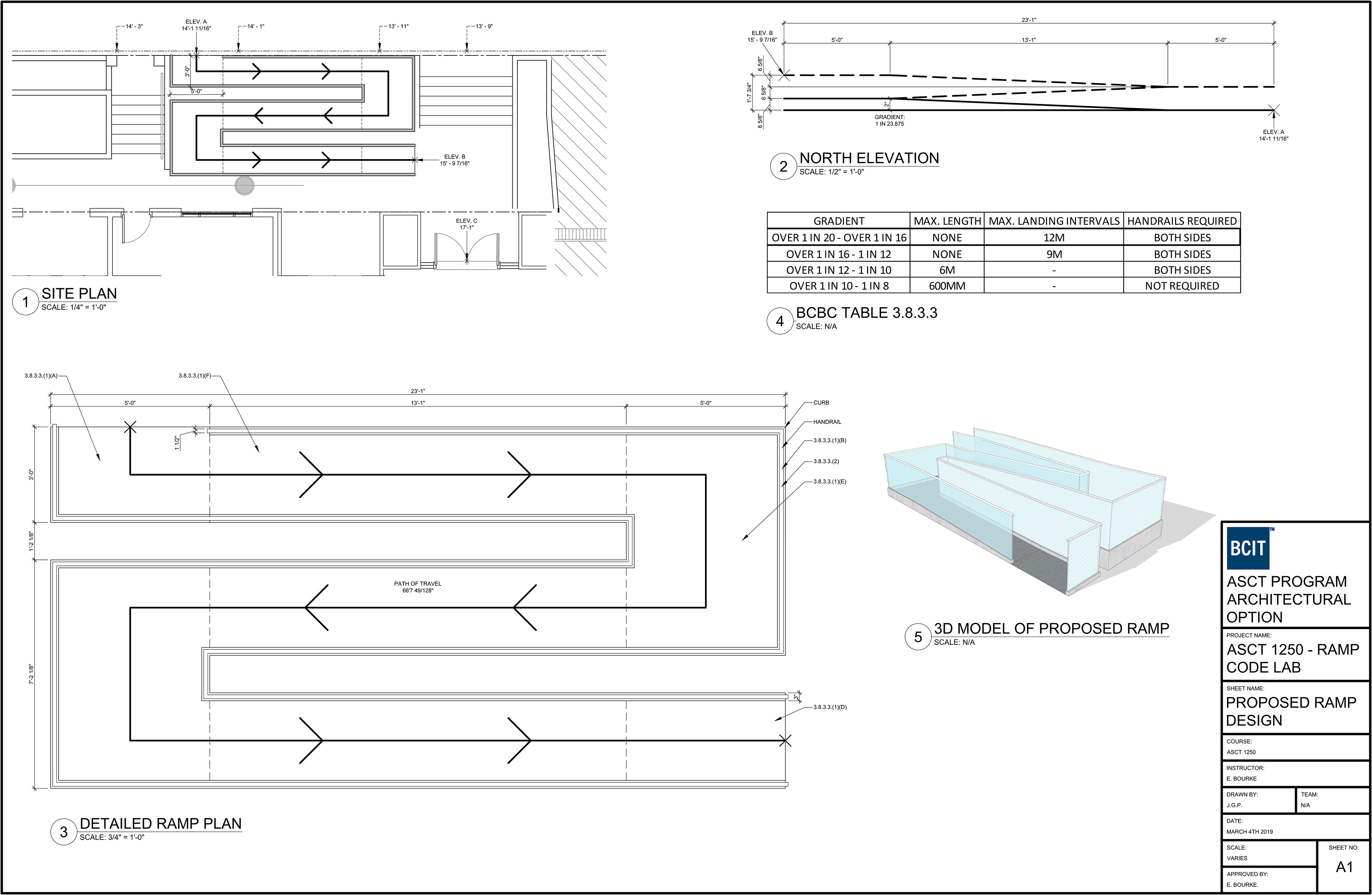
Application Of Building Code

These are some of the more visually appealing examples of my school assignments relating to the BCBC.